Former Presbytery For Sale in Co. Kildare

The Presbytery
Crosschapel
Blessington
Co. Kildare
W91 C98D
An imposing presbytery with useful outbuildings and attractive grounds of about 22 acres on the Wicklow / Kildare border with easy access to the M50 and Blessington.
Price: €895,000
Agent: Savills
Contact: Cianan Duff
Phone: +353 (0)1 618 1300
Email: [email protected]
– Superb period renovation opportunity
– Useful outbuildings and attractive grounds
– Easy access to M50 and Blessington
– About 22 acres of quality lands
– Quiet, rural location bordering two counties
The Presbytery (formerly Hillsborough Hall)
This house, once known as Hillsborough Hall is located adjacent to the Our Lady of Mercy Church. The Presbytery is a two-storey, three-bay house built around 1860, with a smaller single-storey section to the rear. The design is symmetrical, with a round-headed doorway in the centre, in keeping with builds of the time. The house still shows much of its original character including cut-stone Gibbsian doorcase with a decorative fanlight, a slate roof, and timber-panelled shutters on the windows.
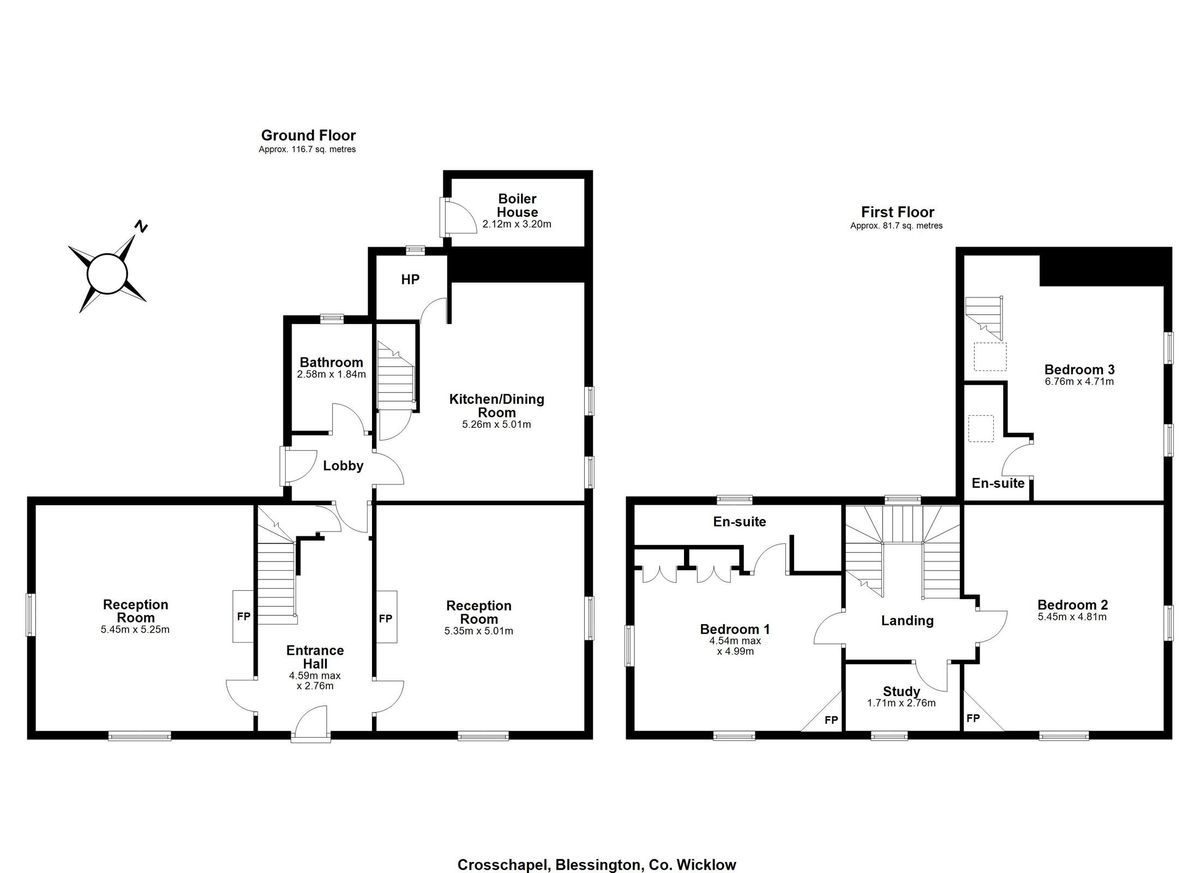
The accommodation briefly comprises of two reception rooms front of the house with a kitchen / dining room and bathroom to the rear.
Upstairs there are 3 large bedrooms (two ensuite) with one accessed from the kitchen, and a single room/ nursery / office.
The property is in need of complete modernisation subject to the relevant planning permissions but offers a buyer the opportunity to redevelop a beautiful period home on its own grounds.
A full layout of accommodation is shown on the adjoining floorplans.
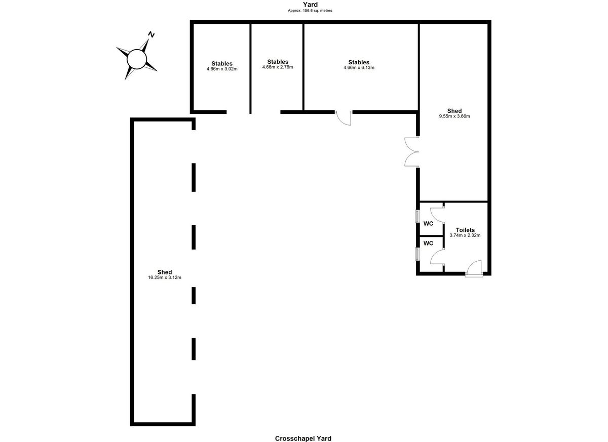
Grounds and Outbuildings
The house is set back from the road with a tarmac driveway to the front of the property surrounded by well-kept lawn gardens. To the rear, around a central courtyard, there is a group of outbuildings, which also keep many of their original features and materials such as slate roofs, whitewashed stone walls, and original timber doors and windows Altogether, the buildings form a well-preserved and historic setting and have endless potential to convert and redesign.
Farmland
The land is in 5 divisions, is bordered on two sides by public roads, gently slopes towards the N81 and has 3 access points. The land is in good order with very little waste and has been leased until recently. Mature trees and hedgerow form the boundary both internally and along the border and are well cared for.
Services
Oil fired central heating, private wastewater, main electricity and water.
Local Information
Blessington, one of the largest towns in West Wicklow, offers a perfect blend of history, natural beauty, and outdoor activities. Situated near the Blessington Lakes and Wicklow Mountains, the town is rich in heritage with notable landmarks such as the Credit Union House, Downshire Monument, and St. Mary’s Church of Ireland.
Blessington is well-connected via the N81, with easy access to Dublin and surrounding areas. The town offers convenient transport options, including bus services and a range of local amenities. Shops in Blessington cater to all needs, from local markets and convenience stores to larger branded stores.
Additional Information
The stunning Russborough House, a magnificent Georgian mansion, is a must-visit, offering guided tours, beautiful gardens, and a hedge maze. The Blessington Lakes provide ample opportunities for outdoor activities including fishing, kayaking, and cycling, while the surrounding area boasts scenic walking trails like the Blessington Greenway and Mass Path.
For adventure enthusiasts, CP Adventure and Avon Activity Centre offer exciting outdoor pursuits such as ziplining and archery. After a day of exploration, visitors can enjoy Blessington’s vibrant culinary scene, with options ranging from food trucks at the Avon Food Village to cozy pubs like Murphy’s Bar and West Wicklow House. The town’s rich culture and natural beauty make it an ideal destination for both relaxation and adventure.
BER Details
BER E1
BER No.118416981

























