Period Property For Sale in Dublin 9

14 Saint Anne’s Road
Drumcondra
Dublin 9
D09 X6R9
Charming period property presented in excellent condition in an exceptionally convenient location with a southerly facing patio garden to the rear.
Price: €495,000
Agent: Savills
Contact: Rose Lyle
Phone: +353 (0)1 618 1300
Email: [email protected]
– Period property with charming features
– Recently decorated
– On street residents disc parking available
– Southerly facing patio garden to the rear
– Exceptionally convenient location
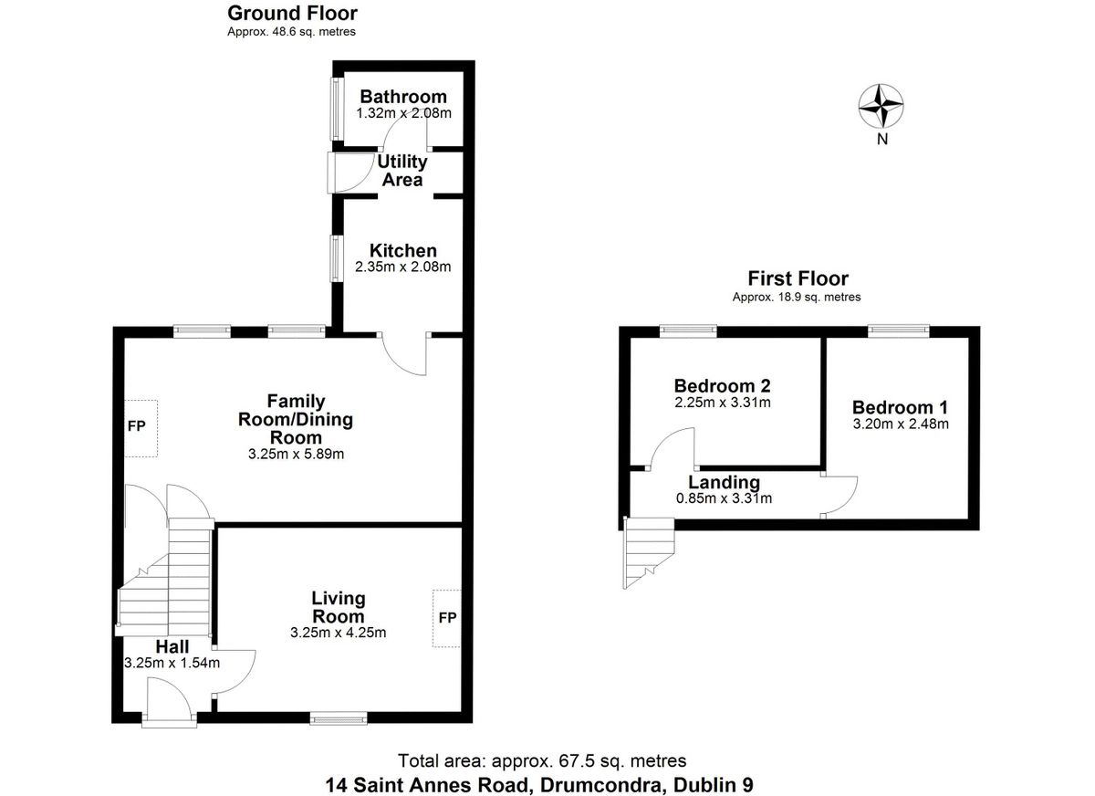
Behind the attractive façade of this charming period property lies a home of warmth, style, and character. High ceilings and well-proportioned rooms give an immediate sense of space, while large windows fill the interiors with natural light. The house has been recently redecorated in neutral tones, creating a fresh and inviting feel throughout.
The accommodation is presented in excellent condition and ready to move into. A welcoming hall leads to elegant reception rooms, each combining period features with tasteful modern touches. The layout is practical yet full of character, offering flexibility for everyday living and entertaining. Given that there are two reception rooms, the front room could easily be used as a third bedroom.
The kitchen is well-appointed, with direct access to the rear garden, while the living areas are designed to make the most of the natural light. Decorative fireplaces, thoughtful finishes, and a bright, airy ambience add to the property’s appeal.
To the rear, the southerly-facing L-shaped patio garden provides a private outdoor haven. This sheltered space comfortably accommodates dining furniture, making it ideal for al fresco dining. Combining period charm, excellent presentation, and a bright, open feel, this home offers a rare opportunity to enjoy a stylish residence in a highly convenient city location, just moments from the amenities of Drumcondra and within easy reach of the city centre.
Agents Note
We wish to inform prospective buyers of this property that the seller is an employee of Savills.
Local Information
Within walking distance of Croke Park, this home is ideally placed for sports fans and event-goers. Excellent golf and tennis facilities are also nearby, including Elm Park Golf Club with its 18-hole course. Outdoor leisure options are plentiful with The Botanic Gardens, Griffith Park, and access to the new Dublin Greenway, offering a direct cycle route to Grand Canal Dock.
This mature location off Drumcondra Road is exceptionally convenient, with the city centre approximately 2.7km away. Drumcondra train station, good bus routes, and easy access to the M50 and Dublin Airport make commuting straightforward.
Nearby are Dublin City University and TU Dublin, Bolton Street, as well as respected hospitals including Temple Street and The Mater. Local heritage buildings such as Drumcondra House add further character to the area.
Drumcondra offers a great mix of shops, cafés, bistros, and restaurants, creating a lively community feel with all essential amenities on the doorstep.
BER Details
BER D1
BER No.103944906










