19th Century Farmhouse For Sale in Co. Mayo

Raheen House and Farm
Raheen
Killala
Co. Mayo
F26 TF40
Productive farm of 85 acres in a contiguous block with a charming refurbished 19th century farmhouse and extensive farm buildings.
Price: €1,100,000
Agent: Savills
Contact: Josh Pim
Phone: +353 (0)1 618 1300
Email: [email protected]
– Refurbished 19th Century farmhouse
– Courtyard, landscaped lawns and mature woodland
– Former dairy farm with 90 cubicles
– 3 reception rooms and 5 bedrooms
– Range of traditional outbuildings and farm buildings
– Productive farmland in a single block
Raheen House
Raheen House and Farm is a charming period residence set in a peaceful and private location just outside the coastal town of Killala. Surrounded by mature trees and open farmland, the house enjoys a secluded setting that offers both privacy and scenic rural views.
Accessed through a pair of traditional stone piers, a tree-lined driveway leads to a generous parking area at the front of the house. Believed to date from the late 19th Century, Raheen House is a well-proportioned country home of classic design, featuring a rendered façade beneath a hipped slate roof.
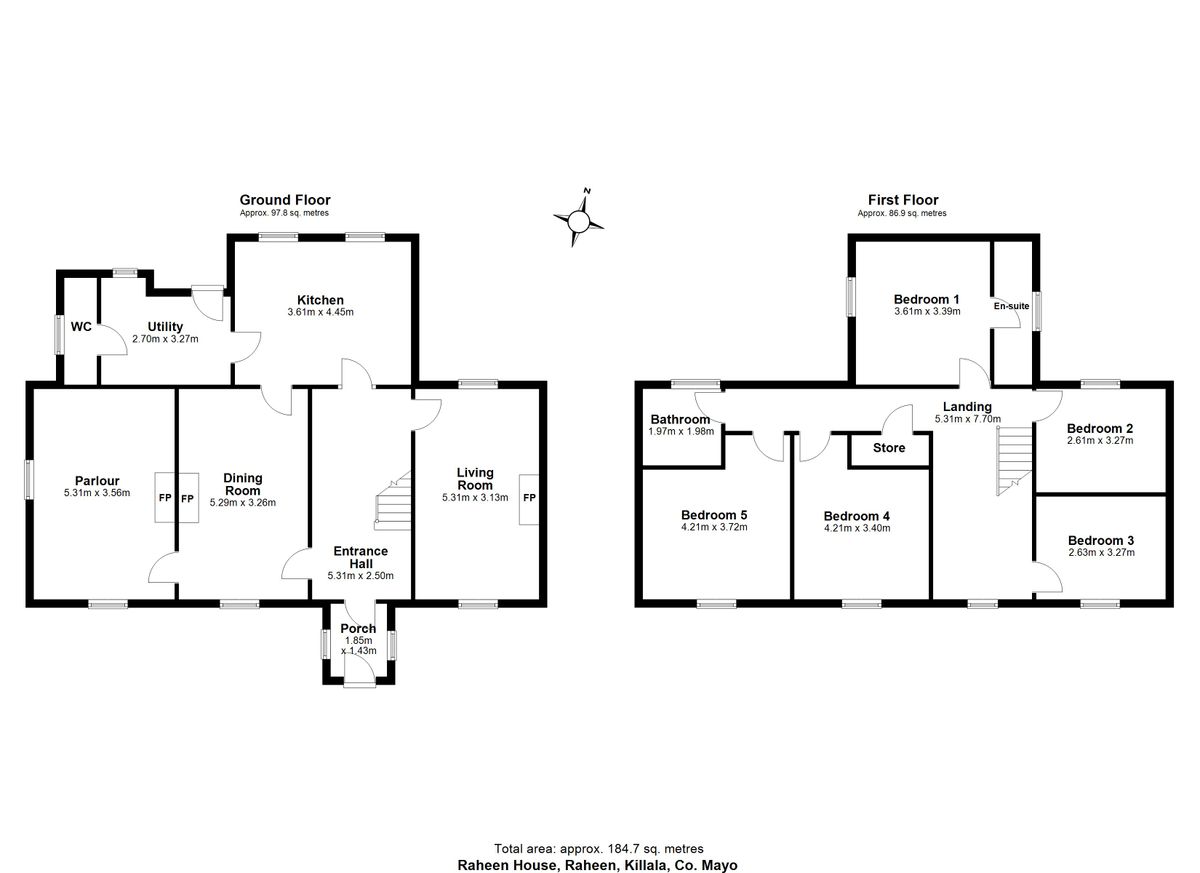
Accommodation is arranged over two storeys and offers a spacious and well-balanced layout as illustrated in the accompanying plans. Internally, the house retains period features including ornate ceiling roses, cornicing, high ceilings, architraves and a decorative marble fireplace.
The property is entered via a porch into a welcoming entrance hall, where a fine curved staircase forms an elegant focal point. From the hall, there is access to two principal reception rooms, both positioned to the front of the house and ideal for formal entertaining or relaxed family use. Also located on the ground floor is a study, a generously sized utility room and a bathroom.
Upstairs, the first floor is laid out to provide five spacious bedrooms, one of which is ensuite, along with a family bathroom. The generous proportions and natural light throughout make this a comfortable and adaptable family home.
Gardens and Grounds
The house is set within mature and well-established grounds, with formal gardens to the front predominantly laid to lawn. Framed by a variety of mature trees and planting, the setting offers both privacy and natural beauty, creating a picturesque and tranquil environment.
Outbuildings
To the rear of the house lies a charming courtyard, enclosed by a series of traditional outbuildings and stores.
Farm Buildings
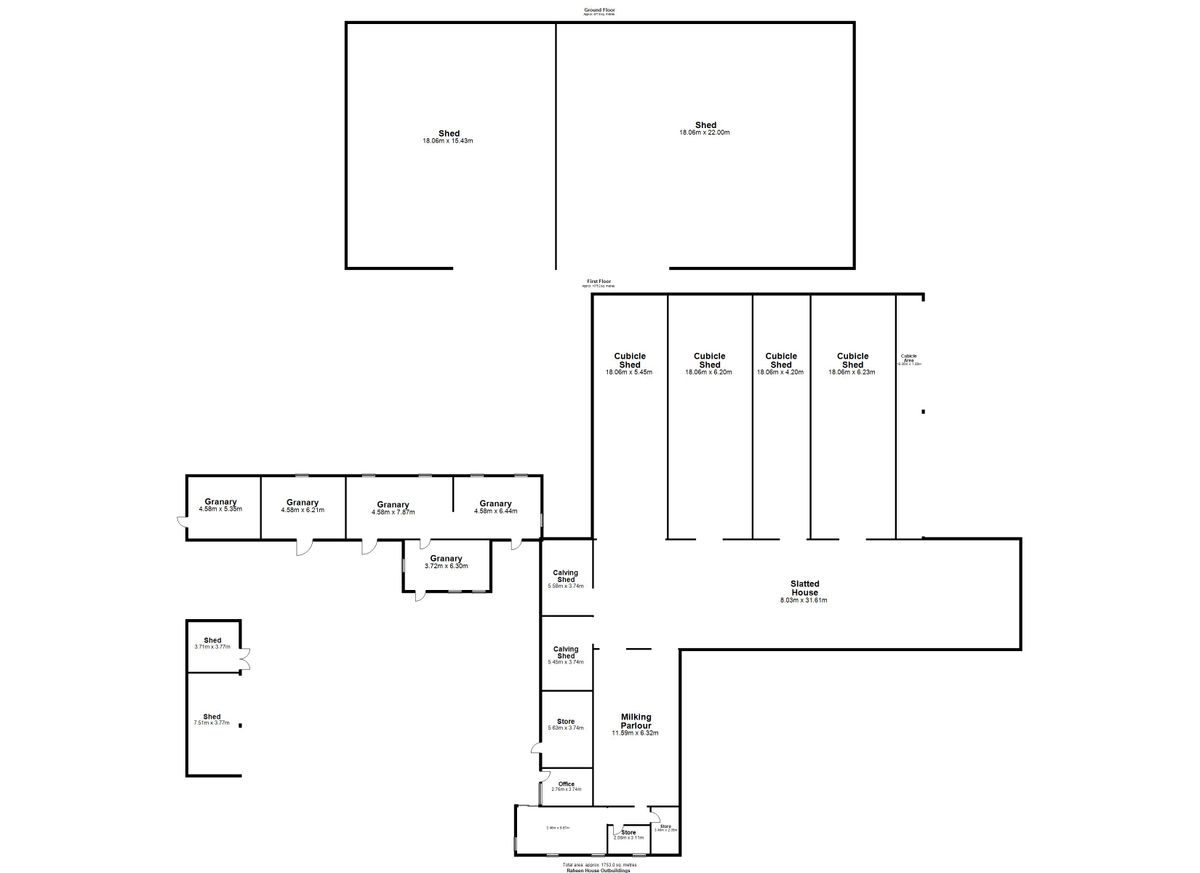
Raheen House and Farm is well-appointed with a range of functional farm buildings, all conveniently located to the rear of the main residence. These include a substantial seven-bay shed of steel-frame construction, partially slatted and roofed with corrugated sheeting. This structure incorporates the original dairy unit and is adjoined by traditional stone-built stores and cubicle shed with 90 cubicles, also with corrugated roofing.
Additional sheds of traditional construction are located throughout the yard and are currently used for general-purpose storage.
To the west of the farmyard lies a large grain store/machinery shed. This four-bay double Dutch barn includes lean-tos on either side and is of steel portal frame construction with corrugated roof and cladding. It features shuttered concrete walls and a solid concrete floor, ideal for heavy machinery or crop storage.
The yard itself is well laid out with extensive concrete aprons and hardstanding, providing excellent access and manoeuvrability. It also includes two silage clamps, both with concrete bases and retaining walls.
Farmland
The land at Raheen House & Farm lies in a contiguous block and comprises productive rolling grassland interspersed with areas of mature woodland. The topography is gently undulating, with elevations ranging from approximately 24 metres / 78 feet above sea level at the northern end to about 20 metres / 65 feet at the southern boundary.
A key feature of the holding is its extensive road frontage, stretching approximately 650 metres, complemented by a network of internal tracks providing excellent access throughout the property.
The land is laid out in a series of well-sized fields, enclosed by a combination of traditional stone walls, mature hedgerows, and electric fencing. This landholding presents an attractive opportunity for both livestock grazing and broader agricultural use.
The land can be classified as follows:
Pasture – 81 acres
Woodland – 2 acres
Miscellaneous – 2 acres
Total – 85 acres
Local Information
Raheen House and Farm enjoys a peaceful yet scenic setting in Raheen, just outside the heritage town of Killala in County Mayo. Located along Ireland’s famed Wild Atlantic Way, this stretch of North Mayo coastline is celebrated for its dramatic cliffs, pristine beaches and uninterrupted ocean views. The area provides a rare blend of coastal beauty and rural tranquillity, while still being within easy reach of nearby towns and amenities.
The property is conveniently situated approximately 6 kilometres from Killala, a picturesque coastal town rich in history and local charm. Killala offers a comprehensive range of day-to-day amenities including a supermarket, cafés, pubs, restaurants, health services, a harbour, and access to the Killala-Ballina Greenway, ideal for walkers and cyclists. The town also features a number of historical landmarks, including Round Towers, ecclesiastical ruins, and ancient forts.
Just 13 kilometres away is Ballina, the largest town in North Mayo, offering a more comprehensive range of amenities including shopping, dining and world-class salmon fishing on the River Moy. Ballina also provides access to a wide selection of primary and secondary schools, sports clubs, and essential services.
The wider area offers excellent recreational opportunities, from golfing at Enniscrone and Carne Links, to hiking along the cliffs at Downpatrick Head or exploring the Céide Fields, one of the oldest Neolithic field systems in the world. For marine and beach enthusiasts, Lacken Strand and Kilcummin Back Strand are popular for swimming, horse riding and water sports. Ross Beach, Killala is also in close proximity and is a blue flag beach.
Despite the rural setting, Raheen House and Farm benefits from excellent transportation links, including the R314 connecting the area south to Ballina and north to Ballycastle. Ballina benefits from regular bus and train services to Dublin, while Ireland West Airport Knock, just 53 kilometres away, provides convenient access to international flights.
The area surrounding Raheen House and Farm is predominantly agricultural, characterised by open fields and picturesque countryside. It benefits from a well-established agricultural infrastructure, including a strong network of agricultural merchants, milk processors and livestock markets.
BER Details
BER E2
BER No.117893743





















